Chat

Einmalige Investitionsmöglichkeit auf Teneriffa: Baugrundstück mit genehmigtem Projekt in Candelaria

Grundstück zum Kauf in Candelaria / Objektnummer: TOP-IC-325-1

Grundstück zum Kauf in Candelaria 1.595.000 €

374 m² Wohnfläche

1.176 m² Gesamtfläche

6.478 m² Grundfläche

Zum Verkauf steht ein außergewöhnliches Grundstück mit eingetragenem Baurecht im sonnigen Valle Candelaria, an der beliebten Ostküste Teneriffas. Das 6.500 m² große Areal liegt in einer ruhigen, sonnigen Umgebung – unweit vom Meer – und bietet einen atemberaubenden Blick auf das Meer und die umliegende Landschaft.

Auf dem Grundstück befindet sich ein bestehendes Haupthaus mit 373,77 m², das sofort nutzbar oder in das Bauprojekt integriert werden kann.

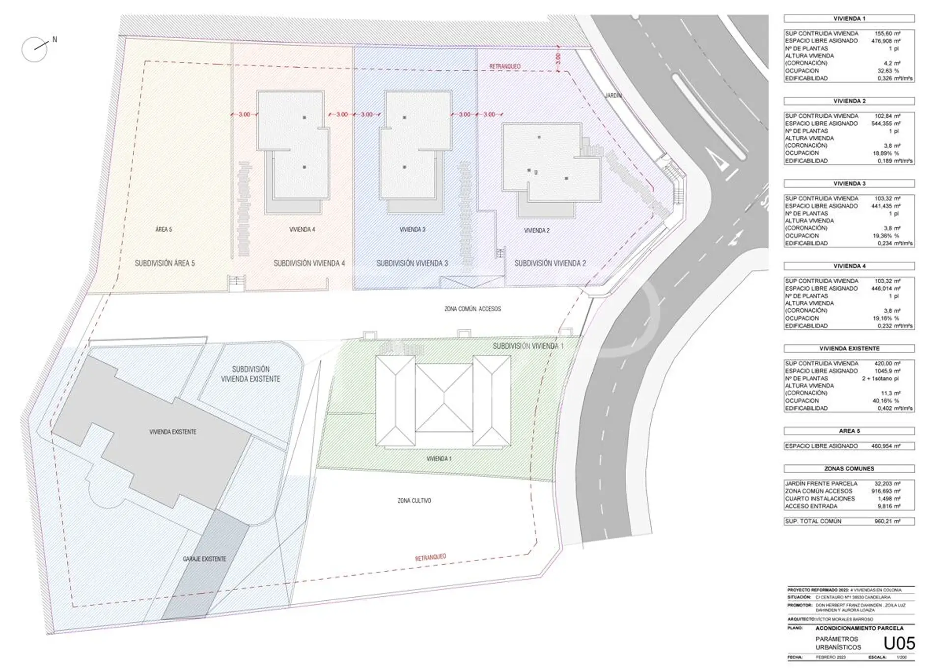
Die Baugenehmigung (erteilt im November 2023) ist bis Oktober 2027 gültig und umfasst die Errichtung von vier modernen Einfamilienhäusern – auf Wunsch kann das Projekt auf fünf Einheiten erweitert werden.

Dieses Objekt bietet eine hervorragende Investitionsmöglichkeit für Bauträger oder Projektentwickler, die auf Teneriffa ein exklusives, renditestarkes Projekt realisieren möchten.

Bauprojekt & Investitionspotenzial

- Genehmigtes Projekt für 4–5 exklusive Einfamilienhäuser
- Bestätigt durch die Gemeinde Candelaria und den Inselrat der Kanaren
- Großzügige Grundstücksaufteilung mit optimaler Sonneneinstrahlung
- Hervorragende Perspektive für Ferienhäuser oder hochwertige Wohnnutzung
- Bereits vorhandene Infrastruktur und gute Zufahrtsmöglichkeiten

Lage

- Ruhige und sonnige Lage im Valle Candelaria
- wenige Minuten mit dem Auto vom beliebten Bade-Strand entfernt
- 10 km bis Santa Cruz de Tenerife
- 3 Minuten zur Autobahn (TF-1)
- Flughafen Teneriffa Nord & Süd jeweils in ca. 20 Minuten erreichbar
- Bushaltestelle direkt vor dem Grundstück

Die Kombination aus Nähe zum Meer, exzellenter Verkehrsanbindung und naturnaher Umgebung macht dieses Grundstück zu einer seltenen Gelegenheit auf dem Immobilienmarkt der Insel.

Besonderheiten

- Großes, ebenes Grundstück mit Meerblick
- Bestehendes Haupthaus inklusive
- Baugenehmigung bis 2027
- Hohe Entwicklungspotenziale
- Ideal für Investoren oder Projektentwickler

Gerne senden wir Ihnen auf Anfrage weitere Unterlagen (Baupläne, Genehmigungen, Fotos, Renditeberechnung) und stehen für eine Besichtigung vor Ort zur Verfügung.

Entfernungen

Einkaufsmöglichkeit
1 km
Autobahn
500 m
Flughafen
25 km

Lageplan

Inhalt wird geladen
Fakten
Objekttyp
Grundstück
Gesamtfläche
1.176 m²
Wohnfläche
374 m²
Grundfläche
6.478 m²
Baujahr
2009
Zustand
gepflegt
Status
verfügbar